Amalia Residence

Grand Bay - Mauritius

100% FREEHOLD

About Grand Bay

Grand Bay is a vibrant coastal village in the northern part of Mauritius, known for its stunning beaches, lively nightlife, and variety of water sports. It's a top tourist destination on the island, offering a mix of relaxation, adventure, and entertainment.

Highlights of Grand Bay, Mauritius

Beaches:

  • Grand Bay Public Beach - A picturesque beach with calm turquoise waters.
  • La Cuvette Beach - A small, serene beach perfect for swimming.
  • Pereybere Beach - Just nearby, known for crystal-clear waters and great snorkeling.

Amalia Residences

Nestled in the heart of Grand Bay, Amalia presents an exclusive collection of three elegant apartments and one stunning penthouse. This property embodies luxurious coastal living with its state of the art amenities and generous parking space. Featuring elevators for seamless access, Amalia is designed to deliver unparallel comfort. The apartments range from 189 to 200 square meters offering spacious living.

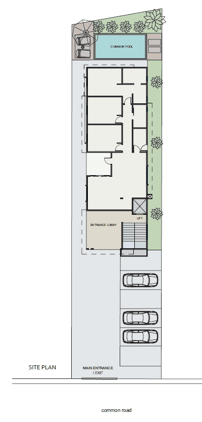
With its prime location and luxurious offerings, this property presents an excellent investment opportunity. Located just an 8-minute walk from Grand Bay Public Beach, and in close proximity to Pereybere village and the Super U shopping center. Whether you’re looking for a permanent residence, a vacation home, or an asset to diversify your real estate portfolio, these apartments promise strong potential for appreciation.

Additionally, with the flexibility for rental income generation, it offers a steady cash flow potential, making it an attractive option for both short-term and long-term investors.


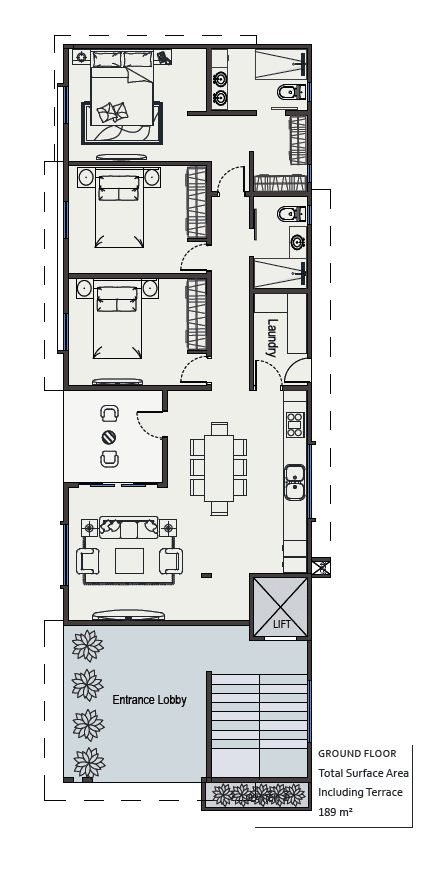
Floorplans

Amalia Residences comprises three spacious apartments and one elegant penthouse, offering a refined coastal living experience.

2 Bedroom Penthouse - £595,000


3 Bedroom with 2 Bathroom

Price per unit - £385,000 / USD 511,640

Apartment Area - 2152.78 sq.ft.

Amalia Residence
Amalia Residence
Amalia Residence
Amalia Residence

Location

Amalia Residence - Mauritius